Stiffness analysis of a connection with a custom cross-section (EN)

This article is also available in:
This tutorial shows how to use IDEA StatiCa Connection to model, design and check a structural steel joint and calculate the stiffness of the connection. The definition of a custom (built-up) cross-section is shown as well.

1 New project

Launch IDEA StatiCa (download the newest version) and select the Connection application.

Create a new project by selecting the starting template closest to the desired design. Fill in the name, select the steel grade S355, design code Eurocode, and Create project.

inline image in article

2 Geometry

We will start with a definition of the custom cross-section built-up of three different sections.

Right-click on the vertical member C and open the context menu with available actions. Use the Plus button to add a new cross-section.

inline image in article

Go to the tab Welded, Composed, and select the General steel cross-section to add a user-defined shape.

inline image in article

In the Cross-section editor, start by adding a new I section.

inline image in article

And click OK to confirm the preselected IPE240.

inline image in article

Then click New to add another section and select Sections T (I-cut).

inline image in article

For the Shape select IPE240 from the cross-section library and input 100 mm for the Height and confirm OK.

inline image in article

Now position the T section by selecting the proper Master comp., Master point and Insert point and input rotation Rx1 of 90° and shift in the z direction of 3.1 mm.

inline image in article

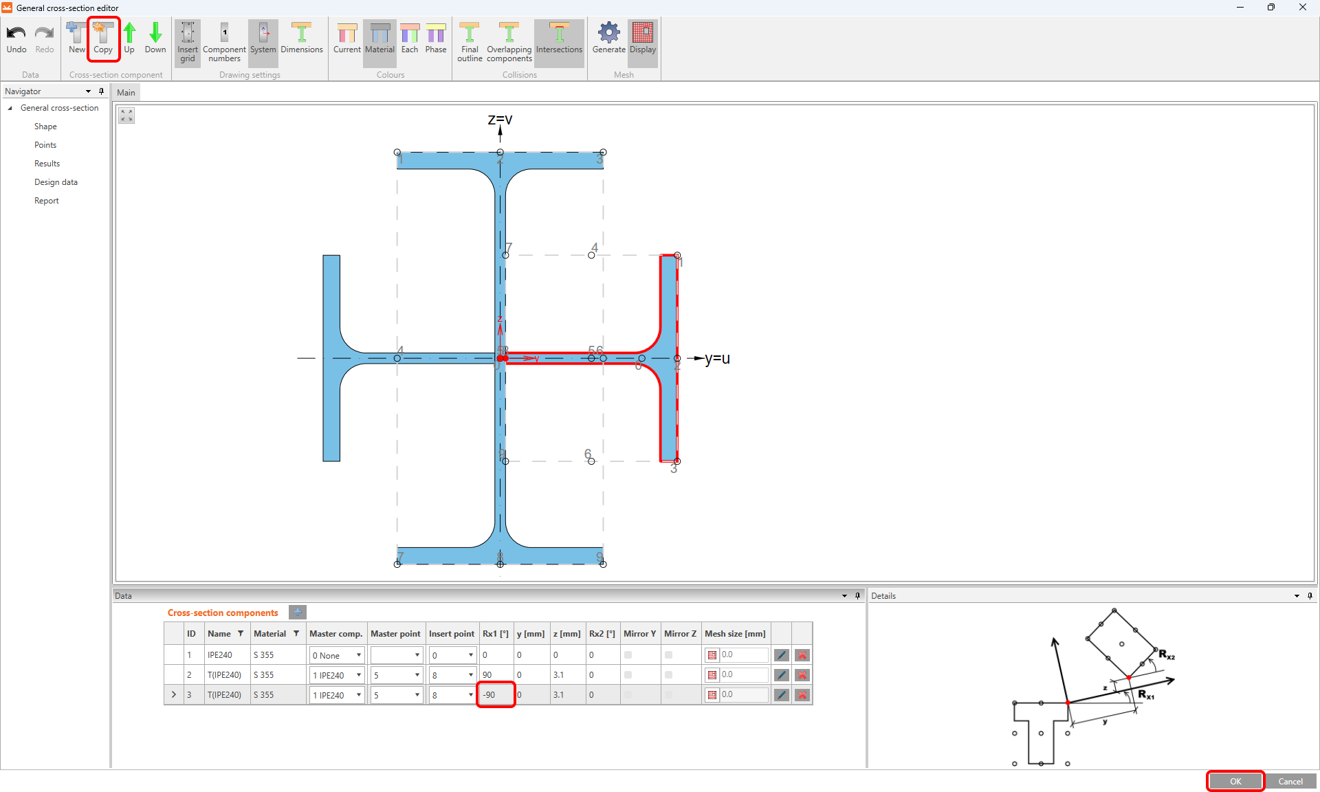
Make a Copy of this section part, edit the rotation Rx1 to -90°, and close the editor with the OK button.

inline image in article

More about the general cross-section editor in the article How to create and use a custom cross-section.

3 Load effects

Keep the values of the automatically added load effect LE1.

inline image in article

4 Design

Select the unwanted operation STIFF1 added with the new project and delete it.

inline image in article

 5 Calculation and Check

Select the project item CON1 and switch the analysis type to Stiffness analysis (ST).

inline image in article

Check that member B1 is set as the Analysed member (underlined in the list of members and displayed in member properties) or set it analyzed member via the right-click menu. Then run the Calculation.

inline image in article

Go to the tab Check and turn on the Plastic strain, Bolt forces, Mesh and Deformed to see the behavior of the connection. In the tab Rotational stiffness we can read the class as Semi-rigid and the value of the Initial rotational stiffness Sj,ini.

inline image in article

Note: For further understanding of the “Theoretical length for My, Mz” and the results, see the Stiffness analysis article and the Theoretical Background chapter Stiffness analysis and deformation capacity of steel joints.

6 Optimization of the connection

Go back to the tab Design to optimize the connection.

inline image in article

Select the end plate EP1 and edit the Top dimension to 150 mm and add 150 mm to the Top layers of bolts.

inline image in article

And add a new operation Widener, switch the Related to item to Plate (plate EP1a is selected automatically), and input 150 mm for both Width and Depth.

inline image in article

Calculate the stiffness analysis again, and in the Check tab see the class became Rigid and the higher value of the Initial rotational stiffness Sj,ini.

inline image in article

7 Report

As the last step, go to the tab Report. IDEA StatiCa offers a fully customizable report to print out or save in an editable format.

inline image in article

You have designed and code-checked a structural steel joint according to Eurocode (EN).

8 Explanation videos

For more information read the Theoretical background.

Sample files

Want to improve your skills? Visit our Campus

Learn how to use IDEA StatiCa effectively with our self-paced e-learning courses

Related articles

Stiffness analysis