RFEM BIM link for concrete structure and beam design (EN)

This article is also available in:
This tutorial will show you how to activate and use the link between RFEM and IDEA StatiCa. The procedure brings workflow on how to reinforce and do the code-check of a selected member of the concrete structure.

1 How to activate the link

Install the latest version of IDEA StatiCa, get it in the Downloads.

Make sure you are using a supported version of RFEM – updates are published in the BIM section.

IDEA StatiCa automatically integrates the BIM link into your CAD/CAE software during its installation. You can check the status and activate more BIM links for later installed software in the BIM link installer.

Open IDEA StatiCa and navigate to the panel BIM and open the BIM link installer. A notification "Run as administrator" may appear, please confirm with the Yes button.

inline image in article

Select the software to integrate the IDEA StatiCa BIM link, click the Install button and check the Installed status.

inline image in article

2 How to use the link

At first, download the source file. Then open it in RFEM and run the Calculation. In RFEM go to menu Add-on Modules then External Modules and run IDEA Beam.

inline image in article

Select the code.

inline image in article

Selected members are 37,38,67,68,69,70. Confirm the selection by using the OK button.

inline image in article

You leave the default path and continue by Next. Notice: Keep the default path in order to further synchronization.

inline image in article

In the next step supports need to be defined. Restrain all translation X, Y and rotation around the global axis Y for node 1. Do the same for node 4 and 7.

inline image in article

Select Cast-in-situ concrete beam and option Reinforced concrete beam.

inline image in article

Leave the next table without any change and continue by Next

inline image in article

 Add all load cases coming from RFEM. The load cases will be inputted as user-defined internal forces.

inline image in article

Automatic data transfer has been started and IDEA StatiCa Beam and the beam with predefined setting is being launched. 

3 Project data

You can see the structural scheme of the designed beam. All predefined data can be changed in the Project data tab. Modify the Beam alignment and Supports position.

inline image in article

4 Load Cases

Go to the Load cases tab and select the Variable load groups to add the groups for live load, snow and wind and for the following renumbering of the partial factors. 

inline image in article

Then go back to the Load cases tab and assign the created load groups to the load cases. Also, delete the SW load case as self weight is already contained in LC1 from RFEM. 

inline image in article

You can go back to the Variable load groups and delete groups that are not used to keep only the three you created.

inline image in article

5 User-Defined Forces

How was mentioned the load cases from RFEM were imported as user-defined forces. You can control all internal forces of selected load cases. You can go one by one to compare the imported internal forces with the results in RFEM. 

inline image in article

6 Combinations

Click Edit to define the combinations. Add all load cases to the ULS combination and continue with all SLS combinations as well.

inline image in article

The description table should be full of the load cases now.

inline image in article

7 Internal Forces

You can check calculated internal forces of all combinations. The prescriptions of envelopes can be seen at the bottom of the window.

inline image in article

8 Concrete Design

The settings of the checks can be defined in the Data tab. Switch off the checkbox for Lateral Stability and Reduction of shear force and switch on the checkboxes for the Reduction and redistribution of moments

inline image in article

In the Reduction and redistribution tab modify the support width according to the width of columns of the structure. And continue with the calculation button

inline image in article

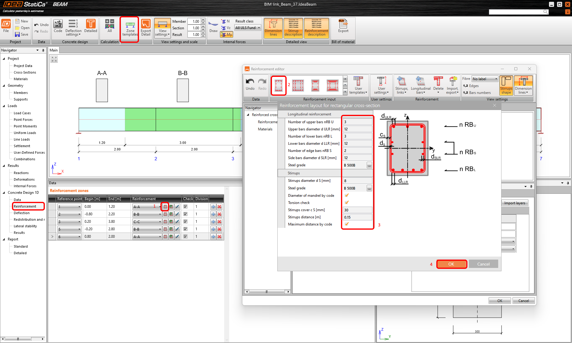
9 Reinforcement

Go to the reinforcement. The option with three zones was automatically created by default according to the geometry. By using Zone templates you can modify the number of zones but for now, keep it as it is. Start with creating new reinforcement for the A-A section. Create the reinforcement by template, modify the input table and confirm by Ok. Continue with the same for section C-C.

inline image in article

Finally, repeat the steps for sections B-B. The program stores the setting of the previous inputs. Let’s change only the distance between stirrups to 0.20 m.

inline image in article

Push the Detailed check for better visualization and understanding of the behavior of the cross-sections in all CS. Or move to tab Results.

10 Results

See the summary of the checks.

inline image in article

11 Detailed Report

At last, go to the tab Report. IDEA StatiCa offers a fully customizable report to print out or save in an editable format.

inline image in article
inline image in article

You have designed, reinforced, and code-checked a prefabricated beam according to Eurocode.

12 Synchronize models

inline image in article

The code-check manager is a BIM tool to export and synchronize models from other programs. It is launched directly in the 3rd party applications via a command/icon.

Synchronize

IDEA StatiCa detects changes in geometry, profiles and load cases in the 3rd party application and updates respective IDEA StatiCa Beam projects.

Calculate

Synchronize and calculate the current item and provide a new set of results.

Calculate all

Synchronize and calculate all items and provide a new set of results.

We save the project in IDEA StatiCa and close the application Beam. All beams exported from the RFEM project to IDEA StatiCa are kept on the list inside RFEM.

inline image in article

If we modify the project in RFEM (e.g. change the cross-section of any member or add other loads) we can simply update the project in IDEA StatiCa without setting it all again. We select the project item and click Synchronize and follow the export process. IDEA StatiCa opens and we can recalculate the updated project.

Sample files

RELATED CONTENT