Az acél csomópontokok gyártásának optimalizálása, Rijssen, Hollandia

Voortman Steel Group
Ez a cikk a következő nyelveken is elérhető
A teljesen automatikus összeszerelő és hegesztőgép telepítésével a Voortman újratervezte az összes szabványos kapcsolatot az IDEA StatiCa Connection használatával a termelés hatékonyságának maximalizálása érdekében.

A Voortman acélcsoport az egyik vezető gyártója az acélszerkezetek, részletek és csatlakozások előkészítésére, feldolgozására és gyártására szolgáló gépeknek.

Az IDEA StatiCa Connection program alkalmazása csökkentette az anyagmennyiség felhasználását és kezelését, valamint a hegesztési költségeket a korábban alkalmazott megközelítéshez képest. Ez együtt járt a gyártási folyamat egyszerűsítésével és felgyorsításával.

Thijs Oerbekke, Registered Structural Engineer / Welding- & Quality Engineer, Voortman Steel Construction

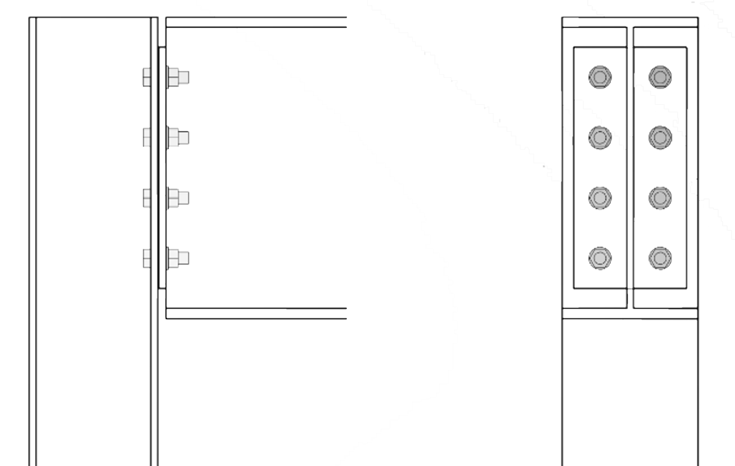
Példa az IDEA StatiCa Connection szabványos csomópont optimalizálására

Komponens módszerrel tervezett csomópont:Az IDEA StatiCa CBFEM módszer által tervezett csomópont:
Véglemez:
vastagság 25 mm
weld flanges 13 mm
weld webs 8 mm
Véglemez:
vastagság 20 mm
weld flanges 8 mm
weld webs 5 mm
4 x merevítő:
vastagság 25 mm
öv varratok 13 mm
gerinc varratok 8 mm
2 x merevítő:
vastagság 10 mm
öv varratok 5 mm
gerinc varratok 5 mm
Csavarok:
2 x 6 x M36
Csavarok:
2 x 4 x M36
inline image in article
inline image in article

Megtakarítások:

  • Véglemez 25%
  • Merevítők 60% (nemcsak az anyag, hanem kevesebb előállítandó, kezelendő és összeszerelhető alkatrész is)
  • Heggesztések 38% , hegesztési térfogat akár 70% (a hegesztési térfogat határozza meg a hegesztési költségeket)
  • Csavarok 33%

Weld and plate optimization, Mill tolerances, and accessibility are taken into account.

inline image in article
inline image in article
inline image in article
inline image in article
Voortman Steel Group

Voortman Steel Group

Netherlands
A Voortman Steel Group innovatív és nemzetközileg működő vállalatokból áll. Detail